Großes Mehrfamilienhaus mit Potenzial in Kirchheim in Schwaben zu kaufen
Großes Mehrfamilienhaus zum vollenden in Kirchheim in Schwaben – Viel Platz und viel Potenzial












Modernes Wohnen mit großem Garten und innovativer Heizung
Die Objektbeschreibung
Willkommen in Ihrem neuen Zuhause – einer außergewöhnlichen Immobilie mit viel Potenzial in Kirchheim in Schwaben.
In zentraler Lage erwartet Sie dieses charmante Mehrfamilienhaus aus dem Baujahr 1954, das Ihnen zahlreiche Gestaltungsmöglichkeiten bietet. Das Gebäude ist teilunterkellert mit ca. 67 m2
und verfügt über eine 2022 bereits ausgebaute Wohnung im Obergeschoss sowie großzügige Ausbaupotenziale in mehreren Etagen, was es zu einer hervorragenden Gelegenheit für Investoren, Bauherren, Handwerker und Familien macht.
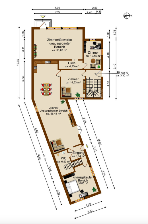
Diese Immobilie bietet die Möglichkeit, eine großzügige Gesamtwohnfläche und Gewerbeeinheiten zu kombinieren.
Das Erdgeschoss beinhaltet eine ca. 33 m2
große Verkaufsfläche mit Schaufenster (ehemalige Bäckerei), ideal als Büro oder Ladenlokal nutzbar. Hinzu kommen vier weitere Räume im EG mit ca. 56 m2
(mit separatem Zugang), die ideal als Ausbaubereich bzw. separates Gewerbe genutzt werden können. Ein WC ist vorhanden. Hier ergibt sich eine enorme Flexibilität in der Nutzung.
Im Obergeschoss befindet sich eine 2022 ausgebaute Wohnung mit ca. 73 m2, die sich durch drei helle Zimmer, eine Küche, ein Badezimmer und ein Gäste-WC auszeichnet. Doch das Potenzial des Obergeschosses geht noch weit über dies hinaus: Es besteht die Möglichkeit, eine weitere ca. 64 m2
große Wohnung zu schaffen oder die bestehende zu erweitern. Diese könnte ebenfalls über drei Zimmer und ein Badezimmer verfügen, was das Angebot an Wohnraum deutlich erweitert.
Das Dachgeschoss des Hauses birgt ebenfalls großes Ausbaupotenzial. Die Räume sind bereits für den Umbau vorbereitet, sodass hier eine zusätzliche Wohnung mit etwa 76 m2 entstehen kann. Die Gestaltungsmöglichkeiten sind flexibel: Je nach Bedarf könnten hier drei großzügige Zimmer und ein Badezimmer realisiert werden, um wertvollen zusätzlichen Wohnraum zu schaffen.
Wir freuen uns auf Ihre Anfrage und vereinbaren gerne einen Besichtigungstermin mit Ihnen.
Alle Daten auf einen Blick
Grunddaten der Immobilie
Objektart Mehrfamilienhaus
Vermarktungsart Verkauf
Ort 87757 Kirchhheim in Schwaben
Verfügbar ab Sofort
Zustand Modernisiert
Wohnfläche Ca. 366 m2
Grundstück Ca. 517 m2
Etagen 3
Anzahl Zimmer 15
Anzahl Badezimmer 2
Balkon / Terrasse Nein / Ja
Stellplatz Doppelgarage und Stellplatz
Wesentlicher Energieträger Gaszentralheizung
Energieausweis Liegt vor
Energiebedarf 265,9 kWh/(m²*a)
Baujahr laut Energieausweis 1954
Provision 3,57% (inkl. gesetzlicher MwSt.)
Ausstattung des Mehrfamilienhauses
Dieses charmante Mehrfamilienhaus überzeugt durch eine solide Basis und bietet gleichzeitig zahlreiche Gestaltungsmöglichkeiten. Dank der flexiblen Struktur können Sie Ihre eigenen Ideen verwirklichen – sei es als Mehrfamilienhaus mit mehreren Wohneinheiten zur Vermietung, als großzügiges Zuhause für eine große Familie oder als renditestarke Kapitalanlage zur Erweiterung Ihres Immobilienportfolios.
Die vorhandenen Ausbauflächen sind bereits vorbereitet und ermöglichen die unkomplizierte Schaffung zusätzlichen Wohnraums. Eine Wohnung im Obergeschoss wurde 2022 vollständig modernisiert und mit neuer Elektrik, hochwertiger Küche sowie modernem Bad ausgestattet. Sie wird derzeit vom Sohn des Eigentümers bewohnt und könnte kurzfristig übernommen werden.
Auch die Haustechnik befindet sich auf aktuellem Stand: Eine Viessmann-Gaszentralheizung (Baujahr 2018) sorgt für effiziente Wärme, während Wasser- und Heizungsleitungen 2022 im gesamten Gebäude erneuert wurden. Zudem ist das Dachgeschoss bereits für den Ausbau vorbereitet.
Optisch präsentiert sich das Haus durch die 2021 erneuerte Fassade in einem modernen Erscheinungsbild. Ergänzend wurden 2006 die Haustür sowie die doppelte Kunststofftür zum großzügigen Lagerraum im Erdgeschoss erneuert, was weitere Nutzungsmöglichkeiten eröffnet.
Eine zukunftssichere Immobilie mit solider Ausstattung, guter Substanz und großem Potenzial zur Wertsteigerung – ideal für Eigennutzer wie auch für Kapitalanleger.
Ein Zuhause mit Potenzial – Jetzt besichtigen
Kaufpreis 375.000,00 €
Zuzüglich Maklerprovision in Höhe von 3,57% (inkl. MwSt.) des Verkaufpreises.
Wohnen und Leben in Kirchheim in Schwaben
Kirchheim in Schwaben – Ländliche Idylle im Herzen des Unterallgäus
Willkommen in Kirchheim in Schwaben – einer charmanten Gemeinde im Landkreis Unterallgäu, die ländliche Idylle mit hoher Lebensqualität verbindet. Eingebettet in eine herrliche Naturkulisse finden Bewohner hier alles, was sie für den Alltag benötigen: Supermärkte, Bäckereien, Metzgereien sowie eine Grundschule und ein Kindergarten sorgen für eine optimale Versorgung. Eine lebendige Dorfgemeinschaft und zahlreiche Freizeitangebote runden das Bild ab.
Sportlich Aktive profitieren von einem vielfältigen Angebot – vom Fußballplatz über Sportvereine bis hin zu weiteren Einrichtungen für Bewegung und Begegnung. Auch die medizinische Versorgung ist mit Haus- und Zahnarztpraxen vor Ort gesichert. Kulturell prägt die traditionsreiche Pfarrkirche St. Michael den Ort, die mit ihrer Architektur und dem prachtvollen Innenraum zu den besonderen Sehenswürdigkeiten gehört.
Naturfreunde genießen die abwechslungsreiche Umgebung mit idyllischen Wander- und Radwegen durch den Kirchheimer Wald sowie dem Kißlegger Weiher, der zu Ausflügen, Angeln oder Paddeltouren einlädt. Im Winter locken die Allgäuer Alpen mit Skigebieten, während im Sommer ein vielfältiges Freizeitangebot wartet.
Dank der guten Anbindung an die A7 und B300 sind Städte wie Memmingen und Ulm schnell erreichbar – ideal für Pendler. Wer Lust auf noch mehr Kultur hat, findet in Memmingen historische Bauwerke, Veranstaltungen und ein lebendiges Stadtleben.
Mikrolage – Hauptstraße 24 im Ortskern
Lebendige Hauptstraße: Die Hauptstraße ist die zentrale Durchgangsstraße im Ortskern mit klassischer innerörtlicher Bedeutung. Sie ist als Landesstraße geführt, mit Asphaltbelag, zwei Fahrstreifen und einer innerorts üblichen Höchstgeschwindigkeit von 50 km/h onlinestreet.de.
Gute Infrastruktur in unmittelbarer Nähe: Entlang der Hauptstraße (einschließlich der Hausnummern rund um 24) finden sich zahlreiche lokale Geschäfte und Dienstleister – etwa Friseure, Versicherungsbüros, ein Autohaus, Heizungs-/Sanitärbetriebe, Catering etc. Das zeigt eine belebte Umgebung mit vielseitigem Angebot Das Örtliche.
Zentrale Position im Wohn- und Geschäftsbereich: Hauptstraße 24 liegt zentral im Dorfgeschehen – ideal für eine Wohnimmobilie mit kurzen Wegen zu Einkaufsmöglichkeiten, lokalen Betrieben und öffentlichen Einrichtungen.

Makrolage – Kirchheim in Schwaben im regionalen Kontext
Zentrale Lage in Bayerisch-Schwaben: Kirchheim in Schwaben liegt auf einem Höhenrücken über dem Mindel- und Flossachtal, etwa 38 km südwestlich von Augsburg, ca. 80 km westlich von München, rund 30 km nordöstlich von Memmingen und etwa 43 km südöstlich von Ulm. Damit befindet sich die Gemeinde an der geografischen Mitte Bayerisch-Schwabens Wikipedia.
Historisch und kulturell geprägt: Der Markt wurde stark durch die Fugger geprägt und bietet mit dem prächtigen Fuggerschloss ein kulturelles Highlight. Weitere Sehenswürdigkeiten wie die Pfarrkirche St. Peter und Paul, Denkmäler und ein Heimatmuseum bereichern das Ortsbild Allgäuer Urlaubsportal.
Perfekte Infrastruktur für Pendler: Kirchheim punktet mit einer hervorragenden Verkehrsanbindung – sowohl über die regionale Erreichbarkeit als auch über direkte Autobahnverbindungen

Ihr neues Zuhause in Kirchheim wartet auf Sie
Dieses Mehrfamilienhaus in Kirchheim in Schwaben vereint modernen Wohnkomfort mit ländlicher Idylle. Es erwartet Sie ein Zuhause mit hellen, großzügigen Räumen, hochwertiger Ausstattung und großem Potenzial. Ob für Paare, Familien oder Ruhesuchende – diese Immobilie bietet Platz für individuelle Lebensentwürfe.
Nutzen Sie jetzt die Chance, dieses besondere Haus in Kirchheim in Schwaben zu besichtigen und sich persönlich von seinen vielfältigen Vorzügen zu überzeugen!
Kontaktieren Sie uns für eine unverbindliche Besichtigung
Interesse geweckt? Dann zögern Sie nicht, uns für eine unverbindliche Besichtigung zu kontaktieren. Wir beraten Sie gerne und stehen Ihnen bei allen Fragen rund um den Kaufprozess zur Seite.
info@weisenbachimmobilien.de
Weitere Fotos der Immobilie
Grundrisse
Unterlagen / Exposé / Energieausweis
Weitere Unterlagen sowie das Exposé erhalten Sie gerne auf Anfrage.
Rechtshinweis
Die Objektangaben stammen vom Eigentümer der Immobilie und sind nicht selbst ermittelt worden, es wird hierfür keine Gewähr übernommen. Dieses Exposé ist nur für Sie persönlich bestimmt. Eine Weitergabe an Dritte ist an eine ausdrückliche Zustimmung gebunden und unterbindet nicht den Provisionsanspruch bei Zustandekommen eines Vertrages. Alle Gespräche sind über Weisenbach Immobilien zu führen. Bei Zuwiderhandlung wird das Recht auf Schadenersatz bis zur Höhe der Provisionsansprüche ausdrücklich vorgehalten. Zwischenverkauf ist nicht ausgeschlossen.
Widerrufsbelehrung
Im Falle eines zustande kommenden Maklervertrages haben Verbraucher das folgende Widerrufsrecht:
Widerrufsbelehrung
Widerrufsrecht für Verbraucher
Sie haben das Recht, binnen vierzehn Tagen ohne Angabe von Gründen den Maklervertrag zu widerrufen.
Die Widerrufsfrist beträgt vierzehn Tage ab dem Tag des Vertragsabschlusses.
Um Ihr Widerrufsrecht auszuüben, müssen Sie uns [Weisenbach Immobilien, Am Langweidbach 2, 86842 Türkheim, Tel-Nr.: 08245 9663232, info@weisenbachimmobilien.de] mittels einer eindeutigen Erklärung (z.B. ein mit der Post versandter Brief, Telefax oder E-Mail) über Ihren Entschluss, diesen Maklervertrag zu widerrufen, informieren. Sie können dafür das beigefügte Muster-Widerrufsformular verwenden, das jedoch nicht vorgeschrieben ist.
Zur Wahrung der Widerrufsfrist reicht es aus, dass Sie die Mitteilung über die Ausübung des Widerrufsrechts vor Ablauf der Widerrufsfrist absenden.
Folgen des Widerrufs
Wenn Sie diesen Vertrag widerrufen, haben wir Ihnen alle Zahlungen, die wir von Ihnen erhalten haben, einschließlich der Lieferkosten (mit Ausnahme der zusätzlichen Kosten, die sich daraus ergeben, dass Sie eine andere Art der Lieferung als die von uns angebotene, günstigste Standardlieferung gewählt haben), unverzüglich und spätestens binnen vierzehn Tagen ab dem Tag zurückzuzahlen, an dem die Mitteilung über Ihren Widerruf dieses Vertrags bei uns eingegangen ist. Für diese Rückzahlung verwenden wir dasselbe Zahlungsmittel, das Sie bei der ursprünglichen Transaktion eingesetzt haben, es sei denn, mit Ihnen wurde ausdrücklich etwas anderes vereinbart; in keinem Fall werden Ihnen wegen dieser Rückzahlung Entgelte berechnet.
Haben Sie verlangt, dass die Dienstleistungen während der Widerrufsfrist beginnen soll, so haben Sie uns einen angemessenen Betrag zu zahlen, der dem Anteil der bis zu dem Zeitpunkt, zu dem Sie uns von der Ausübung des Widerrufsrechts hinsichtlich dieses Vertrags unterrichten, bereits erbrachten Dienstleistungen im Vergleich zum Gesamtumfang der im Vertrag vorgesehenen Dienstleistung entspricht.
ENDE DER WIDERRUFSBELEHRUNG
Muster-Widerrufsformular
(Wenn Sie den Maklervertrag widerrufen wollen, dann füllen Sie bitte dieses Formular aus und senden Sie es zurück.)
An
Weisenbach Immobilien
Am Langweidbach 2
86842 Türkheim
info@weisenbachimmobilien.de
Hiermit widerrufe(n) ich/wir (*) den von mir/uns (*) abgeschlossenen Vertrag über den Kauf der folgenden Waren (*)/ die Erbringung der folgenden Dienstleistung (*)
- Bestellt am (*)/erhalten am (*)
- Name des/der Verbraucher(s)
- Anschrift des/der Verbraucher(s)
- Unterschrift des/der Verbraucher(s) (nur bei Mitteilung auf Papier)
- Datum
____________________________
(*) Unzutreffendes streichen.
ENDE DES WIDERRUFSFORMULARS
Hinweis zum vorzeitigen Erlöschen des Widerrufsrechts
Ihr Widerrufsrecht erlischt bei einem Vertrag zur Erbringung von Dienstleistungen vorzeitig, wenn wir die Dienstleistung vollständig erbracht haben und mit der Ausführung der Dienstleistung erst begonnen haben, nachdem Sie dazu Ihre ausdrückliche Zustimmung gegeben haben und gleichzeitig Ihre Kenntnis davon bestätigt haben, dass Sie Ihr Widerrufsrecht bei vollständiger Vertragserfüllung durch uns verlieren.




